
The cast steel oval body gate valves outside screw and yoke are used for several installations, usually for industrial plants with dangerous liquids, or high temperature. These gate valves are made in cast steel, with body and wedge seat rings in stainless steel. They come from standard execution by handwheel.
Design & manufacture: DIN 3352
Face to face: DIN 3202 F5
Flange ends: UNI EN 1092-1 PN16/25
Inspection and test: API 598
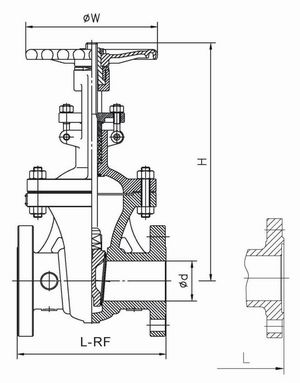
|
DN |
L mm. |
H mm. |
W mm. |
Weight kg. |
|
25 |
160 |
205 |
160 |
10 |
|
32 |
180 |
270 |
180 |
15 |
|
40 |
240 |
305 |
200 |
18 |
|
50 |
250 |
325 |
200 |
23 |
|
65 |
270 |
350 |
200 |
25 |
|
80 |
280 |
415 |
250 |
38 |
|
100 |
300 |
465 |
280 |
45 |
|
125 |
325 |
545 |
300 |
72 |
|
150 |
350 |
610 |
360 |
97 |
|
200 |
400 |
775 |
360 |
169 |
|
250 |
450 |
905 |
400 |
258 |
|
300 |
500 |
1020 |
450 |
330 |
|
350 |
550 |
1180 |
500 |
470 |
|
400 |
600 |
1300 |
500 |
572 |
|
450 |
650 |
1420 |
600 |
816 |
|
500 |
700 |
1585 |
600 |
1180 |
|
600 |
800 |
1810 |
680 |
1450 |
|
700 |
900 |
2945 |
600 |
1860 |
|
800 |
1000 |
3345 |
600 |
2461 |
|
900 |
1100 |
3750 |
600 |
3080 |
|
1000 |
1200 |
405 |
600 |
3944 |
|
1200 |
1400 |
4830 |
600 |
6020 |
|
PN(MPa) |
Shell Test(MPa) |
Water Seal Test(MPa) |
Air Seal Test(MPa) |
|
1.6 |
2.4 |
1.76 |
0.5~0.7 |
|
2.5 |
3.75 |
2.75 |
|
4.1 |
6.0 |
4.4 |
|
6.4 |
9.6 |
7.04 |
|
10.0 |
15.0 |
11.0 |
|
Body-bonnet |
GS-C25, CF8(M), CF3(M) |
|
Disc |
GS-C25, CF8(M), CF3(M), Monel |
|
Stem |
2Cr13, F304(L), F316(L), Monel |
|
Seat ring sealing face |
13Cr, STL, 304(L), 316(L), Monel |
|
Wedge disc sealing face |
13Cr, STL, 304(L), 316(L), Monel |
|
|