Click for technic details

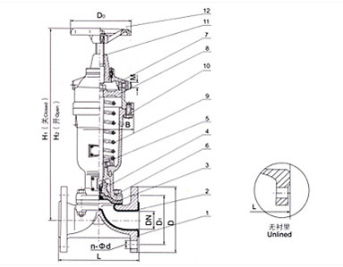
It is special for controlling the noncorrosive or the strong corrosive media. Its body inner surface is unlined or lined with different fluorine plastics which can be selected to suit with different working temperatures and fluid pipelines.
Suitable temperature: ¡Ü85¡æ, ¡Ü100¡æ, ¡Ü120¡æ, ¡Ü150¡æ according to the materials of lining and diaphragm
Design & manufacture: GB 12239
Face to face: GB 12221, JB1688
Flanged ends: GB4216, JB78
Test for lining layer: Electro spark detecting
Test: GB/T 13927
|
Body & Bonnet |
Cast Iron, Carbon Steel, Stainless Steel |
|
Lining |
Unlined, Fluorine Plastic |
|
Diaphragm |
Fluorine Plastic |
|
Disc |
Cast Iron, Stainless Steel |
|
Stem |
Carbon Steel, Stainless Steel |
|
DN |
L mm |
D mm |
D1 mm |
D0 mm |
Z-¦Õd |
H mm |
Air Joint in |
Weight kg |
|
15 |
125 |
95 |
65 |
|
4-¦Õ14 |
|
|
|
|
20 |
139 |
105 |
75 |
|
4-¦Õ14 |
|
|
|
|
25 |
145 |
115 |
85 |
120 |
4-¦Õ14 |
306 |
10x1 |
7.5 |
|
32 |
160 |
140 |
100 |
140 |
4-¦Õ18 |
|
12x1.25 |
14.5 |
|
40 |
180 |
150 |
110 |
140 |
4-¦Õ18 |
415 |
12x1.25 |
16 |
|
50 |
210 |
165 |
125 |
160 |
4-¦Õ18 |
643 |
12x1.25 |
24.5 |
|
65 |
250 |
185 |
145 |
160 |
4-¦Õ18 |
|
|
30 |
|
80 |
300 |
200 |
160 |
200 |
4-¦Õ18 |
627 |
16x1.5 |
51.5 |
|
100 |
350 |
220 |
180 |
240 |
8-¦Õ18 |
719 |
16x1.5 |
86.5 |
|
125 |
400 |
250 |
210 |
320 |
8-¦Õ18 |
804 |
20x1.5 |
133 |
|
150 |
460 |
285 |
240 |
320 |
8-¦Õ22 |
920 |
20x1.5 |
196.5 |
|
200 |
570 |
340 |
295 |
400 |
8-¦Õ22 |
1145 |
20x1.5 |
279.5 |
|
250 |
680 |
395 |
350 |
|
12-¦Õ22 |
|
|
|