HOME
ABOUT US
NEWS
PRODUCTS
QUALITY
GALLERY
E-CATALOGUES
ENQUIRY
CONTACT US
Valves
Gate
Globe
Check
Ball
Butterfly
Plug
Strainer
Air Relief
Diaphragm
Brass
Control
Safety
Marine
Fittings
Cast Steel
Stainless Steel
Forged Steel
Micro melted Stainless...
Flanges
Forged Carbon Steel
Forged Stainless Steel
Joints
Rubber Expansion Joint
Three Flange Dismantling...
Bellow Dismantling Joints
Tester
Pipes
Others
Gasket
Bolts & Nuts
QUALITY
SEARCH
PRODUCT >>
Flanges
>>
Forged Carbon Steel
Product Name:
JR-FL-04 Thread Flange
SPECIFICATION/SPECIAL FEATURES
Click for technic details
Pressure: 150lbs, 300lbs and 600lbs
Standard: ANSI B 16.5
Material: carbon steel: A105
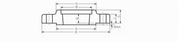
Size
D
G
X
t
B 1
T 2
Q
Weight
150 lbs
1/2¡±
89
35.1
30.2
11.2
15.7
15.7
15.7
-
3/4¡±
99
42.9
38.1
12.7
20.8
15.7
15.7
-
1¡±
108
50.8
49.3
14.2
26.7
17.5
17.5
-
1 1/2¡±
117
63.5
58.7
15.7
35.1
20.6
20.6
-
1 1/4¡±
127
73.2
65.0
17.5
40.9
22.4
22.4
2¡±
152
91.9
77.7
19.1
52.6
25.4
25.4
-
2 1/2¡±
178
104.6
90.4
22.4
62.7
28.4
28.4
-
3¡±
191
127.0
108.0
23.9
78.0
30.2
30.2
-
3 1/2¡±
216
139.7
122.2
23.9
90.2
31.8
31.8
4¡±
229
157.2
134.9
23.9
102.4
33.3
33.3
-
5¡±
254
185.7
163.6
23.9
128.3
36.6
36.6
-
6¡±
279
215.9
192.0
25.4
154.3
39.6
39.6
-
8¡±
343
269.7
246.1
28.4
202.7
44.5
44.5
10¡±
406
323.9
304.8
30.2
254.5
49.3
49.3
-
12¡±
783
381.0
365.3
31.8
304.8
55.6
55.6
-
14¡±
533
412.8
400.1
35.1
336.6
57.2
57.2
-
16¡±
597
469.9
457.2
36.6
387.1
63.5
63.5
-
18¡±
635
533.4
505.0
39.6
438.2
68.3
68.3
20¡±
699
584.2
558.8
42.9
489.0
73.2
73.2
-
24¡±
813
692.2
663.4
47.8
590.6
82.6
82.6
-
Hits£º4201 Input time£º2012-06-07 ¡¾
Print this page
¡¿
Copyright @2012 XIAMEN JIREH INDUSTRIAL CO., LTD. Incorporated. All rights reserved. ICP:
ÃöICP±¸17023395ºÅ
Adds: 1105 Block B Yucheng Bldg.No.51 Dongdu Road, Xiamen, China Post Code: 361012
Tel: 0086-592-5616848 5616881 5616805 5616458 Fax:0086-592-5616958
E-mail:
jireh@jirehvalve.com
;
xmjireh@189.cn
Site: http://www.jirehvalve.com