Click for technic details

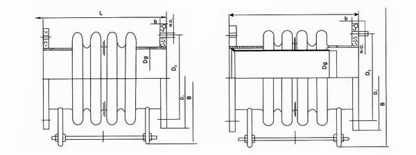
The dismantling joints are used in order to mount and dismantle valves from the pipeline. The bellow allows the compression of the joints, facilitating installation or dismantling procedures, compensating axial movements of the pipe. The joint must be compressed before installation. The bellow dismantling joints can be installed above or underground, in chambers and generally speaking in plants during operations. The bellow is made in stainless steel AISI 304/321, tie rods and bolts are in stainless steel AISI 304, flanges in galvanized steel or epoxy coated. Connection stud bolts are not included.
Flanges: UNI EN 1092-1 PN 10/16/25/40
|
Body |
Ductile Iron |
|
Sealing Ring |
EPDM |
|
Flange |
Ductile Iron |
|
Gland |
Ductile Iron |
|
DN |
L |
Axial displacement |
No. of bellows |
No. of tie rods |
D1 |
D2 |
b |
d 1 |
n |
Lateral displacement |
|
Strength |
Compensation |
|
PN10 |
|
80 |
190 |
358 |
10 |
8 |
3 |
200 |
160 |
24 |
18 |
8 |
274 |
|
100 |
210 |
417 |
18 |
8 |
3 |
220 |
180 |
26 |
18 |
8 |
305 |
|
125 |
250 |
409 |
20 |
8 |
3 |
250 |
210 |
28 |
18 |
8 |
324 |
|
150 |
260 |
456 |
28 |
8 |
3 |
285 |
240 |
28 |
22 |
8 |
364 |
|
200 |
335 |
320 |
32 |
8 |
3 |
340 |
295 |
30 |
22 |
12 |
442 |
|
250 |
380 |
620 |
30 |
8 |
4 |
405 |
355 |
32 |
25 |
12 |
507 |
|
300 |
470 |
835 |
32 |
8 |
4 |
460 |
410 |
32 |
25 |
12 |
562 |
|
350 |
470 |
1265 |
|
6 |
4 |
520 |
470 |
34 |
25 |
16 |
622 |
|
400 |
470 |
912 |
|
6 |
4 |
580 |
525 |
38 |
30 |
16 |
700 |